Dom, ktorý sa pri pohľade z diaľky takmer stráca v krásnej krajine stredného Slovenska, budí dojem, že ho na toto miesto citlivo zasadila sama ruka Pána. V skutočnosti je dielom invencie, pokory a premysleného prístupu architektov z ateliéru Paulíny Hovorka Architekti.

Lokalita zvaná Suchý vrch leží na kopci nad Banskou Bystricou na úpätí Kremnických vrchov. Majitelia domu aj architekti dokonale pochopili jedinečný a nenahraditeľný potenciál tohto miesta – krásna príroda v okolí a výhľady na mesto, borovicové lesy priamo za plotom a na obzore silueta hrebeňov Veľkej Fatry a Nízkych Tatier. Táto jedinečná konfigurácia si vyžiadala špeciálny prístup. „Zadaním bol jednopodlažný dom v maximálnom kontakte so záhradou, výhľady na les zo všetkých obytných miestností, zachovanie súkromia,“ uvádza architekt Martin Paulíny, spoluautor návrhu. „Klienti si priali dobre presvetlený, ale aj účinne tienený interiér prepojený s obytnou terasou. Po praktickej stránke odolný dom s minimálnymi nárokmi na údržbu. Od tejto požiadavky sa odvíjala skladba materiálov – jednoduchá, surová, bez vrstvených povrchov a zložitých detailov.“ Základom je monolitická betónová sendvičová konštrukcia s nosnou železobetónovou časťou, vloženou tepelnou izoláciou z fenolovej peny a pohľadovým betónom na povrchu. Konštrukcia zvýšenej strechy a vnútorné stĺpiky sú z ocele, trojuholník elementárnych materiálov dopĺňa prírodné drevo na podlahách, interiérových a exteriérových obkladoch, dverách a oknách.
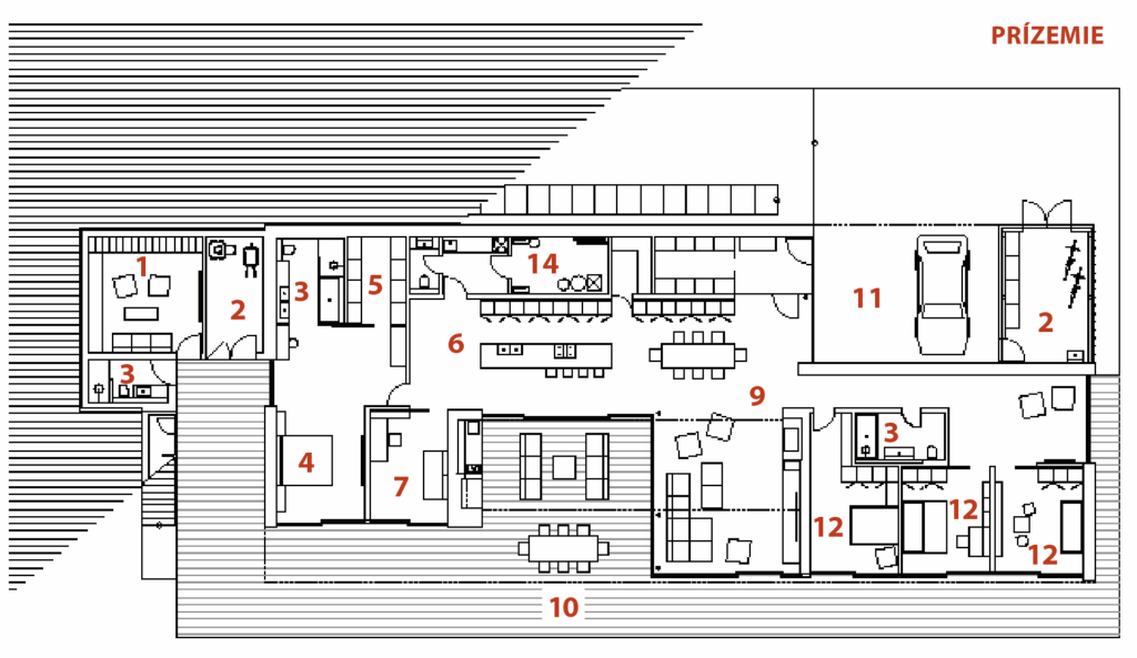
Východiskom bola situácia na pozemku
Architektonický návrh vychádza z požiadaviek stavebníkov, zasadených do kontextu miesta. Na pozemok sa vstupuje v západnom rohu, v jeho najvyššom bode a záhrada sa zvažuje smerom k juhovýchodu. Pred vjazdovou bránou boli vytvorené parkovacie miesta pre hostí na streche podzemnej vínnej pivnice. Za bránou sa vchádza na zatrávnenú rampu, ktorá spadá pozdĺž severnej fasády domu takmer o celú výšku podlaží. Vedie k dvom krytým parkovacím miestam a hlavnému vstupu do domu. Obdĺžniková stavba je sčasti zapustená do svahu, od vstupu na pozemok terén plynule prechádza do zelenej strechy domu. Juhovýchodná fasáda je plne presklená, tu sa nachádzajú obytné miestnosti orientované do súkromnej časti záhrady. Ťažiskom veľkorysej, komfortne riešenej dispozície je veľká obytná hala so sedením, jedálenským stolom, kuchyňou a terasou, ktorá je zapustená do hmoty domu a krytá presahujúcou strechou. Jej dominanciu zvýrazňuje zvýšený strop s pásovým podstrešným oknom po celej dĺžke. Vďaka tomuto spôsobu osvetlenia dosahuje denné svetlo až do hĺbky dispozície. Štyri metre vysoký strop je adekvátny veľkej ploche haly, vytvára dojem monumentality a vzdušnosti a opticky túto časť domu ešte zväčšuje. Na obytnú halu nadväzuje na západnej strane spálňa rodičov s vlastnou veľkou šatňou, kúpeľňou a pracovňou a na opačnej strane zóna pre deti, kde sa nachádzajú dve detské izby, izba pre hostí a sociálne zázemie. Severnú časť dispozície tvorí pás miestností technického zázemia a úložné priestory. Pri vjazde na pozemok je v teréne zapustená vínna pivnica prístupná zvonku z terasy.
Architektúra a materiály
Stavba sa nenásilne napája na svahovitý terénny reliéf, ktorý ju z dvoch strán objíma a chráni a otvára sa na slnečný juhovýchod. „Kompozične stavbe dominuje horizontála, s orientáciou presklených stien na obytnú terasu s výhľadom na les,“ pokračuje architekt. „Rozhranie medzi terasou a interiérom nie je lineárne, v obytnej hale sme vytvorili pravouhlý meander vstupujúci dovnútra do domu. Obytná časť terasy je zapustená hlbšie do centra stavby, poskytuje maximálne súkromie a využíva sa ako plnohodnotná letná kuchyňa s jedálenským stolom a sedacou súpravou.“ Exteriér je materiálovo zjednotený s interiérom prostredníctvom surového povrchu pohľadového betónu, do ktorého je vtlačená stopa každej praskliny či inej nerovnosti dreveného debnenia. Takáto textúra dáva stavbe autenticitu a rozpráva jej príbeh. Neutrálne sivé plochy korigujú svojimi červenkastými tónmi drevenú tíkovú podlahu, dvere a drevené obklady stien. Ďalšími farebnými a materiálovými komponentmi sú hladké biele omietky, sklo a nábytkové solitéry vo svetlosivej a čiernej farbe. Neutrálne čisto funkčný dizajn odráža životný štýl rodiny, prístup k bývaniu a tiež sa podvoľuje tomu, čo je v dome hlavné – výhľad do lesa a bohatý spoločný život rodiny.

1 vinotéka, 2 sklad, 3 kúpeľňa, 4 spálňa, 5 šatňa, 6 kuchyňa, 7 pracovňa, 8 zádverie, 9 obývacia hala, 10 terasa, 11 parkovacie miesto, 12 izba, 13 sklad, 14 technická miestnosť
Technické parametre:
- Zastavaná plocha: 439 m2
- Úžitková plocha: 365 m2
- Konštrukcia: železobetónové základové pásy a základová doska, železobetónová monolitická konštrukcia + oceľové stĺpy, stropy železobetónová monolitická doska, zvýšený strop – oceľová priehradová konštrukcia, obvodové steny sendvičové – medzi betónové steny vložená tepelná izolácia z fenolovej peny, povrchy stien – pohľadový betón, v streche izolačné dosky PIR a striekaná polyuretánová pena (v oceľovej konštrukcii), fasádny vetraný drevený obklad, v interiéri pohľadový betón, drevený obklad a hladké omietky
- Výplne otvorov: vnútorné dvere drevené so skrytými zárubňami, okná a presklené steny – pevné bezrámové zasklenie s izolačnými trojsklami, drevené okná (Janošík okná – dvere), predokenné screenové rolety na el. pohon
- Vykurovanie: podlahové teplovodné vykurovanie

Autori Štúdio PAULÍNY HOVORKA ARCHITEKTI Ing. arch. Braňo Hovorka,
Ing. arch. Martin Paulíny Autorizovaní architekti, partneri ateliéru Pauliny Hovorka Architekti. Ateliér sa zameriava na navrhovanie novostavieb a rekonštrukcií obytných a občianskych stavieb vrátane urbanistického riešenia a návrhu interiérov.
Spoluautorka: Ing. arch. Natália Galko Michalová Kontakt: www.pha.sk



