Pohodlný, praktický, pekný napohľad, s úspornou prevádzkou, za rozumnú cenu… Tieto požiadavky a predstavy stavebníkov o novom dome zostávajú už mnoho rokov stabilné. Prístup k stavebníctvu a bývaniu sa však postupne mení zároveň s technologickým a spoločenským vývojom.
Na začiatku rozhodnutia o stavbe rodinného domu stojí vždy potreba väčšieho pohodlia, viac priestoru a súkromia a predovšetkým prianie mať záhradu a „byť svojím pánom“. Pre túto voľbu je zásadný výber lokality a konkrétneho pozemku, ktorý do značnej miery ovplyvňuje tak podobu domu, ako aj životný štýl jeho obyvateľov. Kto si praje maximálnu voľnosť, pokoj a spojenie s prírodou, musí hľadať na inom mieste a niečo iné ako ten, komu záleží na dobrej dostupnosti škôl pre deti, prípadne obchodov a ďalšej občianskej vybavenosti. Veľkosť, tvar a ďalšie vlastnosti parcely tiež predurčia, či si budete môcť dovoliť postaviť bungalov, alebo si váš stavebný program vyžiada viac podlaží, lokalita zase ovplyvní architektonický ráz.
Stavba a životná perspektíva
Ďalším rozhodujúcim faktorom je dôvod stavby domu a životná perspektíva stavebníkov. Hlavnými kategóriami sú dnes páry zakladajúce rodinu či rodiny s deťmi a tiež dvojice stredného či vyššieho veku, ktoré si želajú vybudovať pohodlné bývanie na dôchodok. Ich domy sa budú líšiť z hľadiska počtu podlaží a druhu miestností aj dispozície. Pre páry stredného a staršieho veku je vhodné bezbariérové bývanie a domácnosť s úspornou prevádzkou, zatiaľ čo rodiny s deťmi budú potrebovať viac priestoru, väčšiu spoločnú obývaciu časť, detské izby, väčšie sociálne zázemie atď. A inú podobu bude mať dom, ktorý má umožniť napríklad prácu z domova, intenzívnejšie športové vyžitie, viacgeneračné bývanie, umeleckú tvorbu alebo bude slúžiť na rekreáciu. K zásadným otázkam, ktoré by mali padnúť hneď na počiatku, patrí aj výber stavebnej technológie a rozhodnutie, či stavať podľa individuálneho projektu, alebo zvoliť katalógový dom.

S architektom alebo s developerom?
Nejde len o otázku finančnú, podstatné je, aby dom naozaj splnil konkrétne potreby a očakávania stavebníka a jeho rodiny a riešenie bolo zároveň vhodné pre daný pozemok a lokalitu. Oplatí sa uvažovať v dlhodobom časovom horizonte, a to aj s ohľadom na prípadný predaj alebo prenájom domu, napríklad keď dôjde k zmene rodinnej situácie. Stavebníci, ktorí nemajú špecifické individuálne požiadavky, si bez problémov vyberú z bohatej ponuky typových domov na našom trhu, prípadne si môžu katalógový projekt nechať jednoduchým spôsobom upraviť podľa svojich potrieb a podľa konkrétneho pozemku. Táto voľba je vhodná pre štandardné rovinaté alebo mierne svahovité pozemky jednoduchého obdĺžnikového alebo štvorcového tvaru, s vhodnou orientáciou na svetové strany, ležiace mimo lokality so zvláštnymi požiadavkami (napr. v dosahu pamiatkovo chránených zón, chránených krajinných oblastí a pod.). Ak zvolíte osvedčenú spoločnosť s dlhoročnou pôsobnosťou na trhu a mnohými realizáciami, býva toto riešenie spoľahlivé, časovo menej náročné a ekonomicky výhodné. Také domy sú „univerzálne“, spravidla sa dajú aj dobre upraviť ci rekonštruovať alebo predať. Stavebníkov, ktorí majú vysoko individuálne požiadavky, túžia po nadštandarde a po originalite, čaká spolupráca s architektom. Týka sa to väčšinou aj tých, ktorí si kúpili atypický pozemok (neobvyklého tvaru, v prudkom svahu, v severnom svahu, s ťažkými zakladacími podmienkami alebo na úplne unikátnom mieste), pozemok v dosahu chránenej krajinnej oblasti, pamiatkovej zóne či s inými obmedzeniami. Dobrý architekt má predstavivosť, technické znalosti a skúsenosti z praxe a uvažuje v súvislostiach, ktoré stavebníkovi laikovi niekedy ani nenapadnú. Dokáže navrhnúť praktickú a pohodlnú dispozíciu v súlade s estetickým vzhľadom a tiež korigovať nereálne alebo príliš nákladné požiadavky, ako napríklad zbytočný nadimenzovaný stavebný program, atypické konštrukcie a pod. Stavať dom podľa individuálneho návrhu rozhodne nie je pre každého. Ide o nákladnejší, rizikovejší a časovo náročnejší proces ako v prípade developerského projektu. Zásadná je voľba spoľahlivého architekta, ktorý vytvorí pre vás optimálne riešenie bez zbytočného nadhodnotenia, a vzájomná dôvera. Kvalitný návrh by vám mal priniesť premyslenú dispozíciu presne na mieru, komfortné bývanie s ekonomickou prevádzkou a ako nadhodnotu originálny vzhľad.

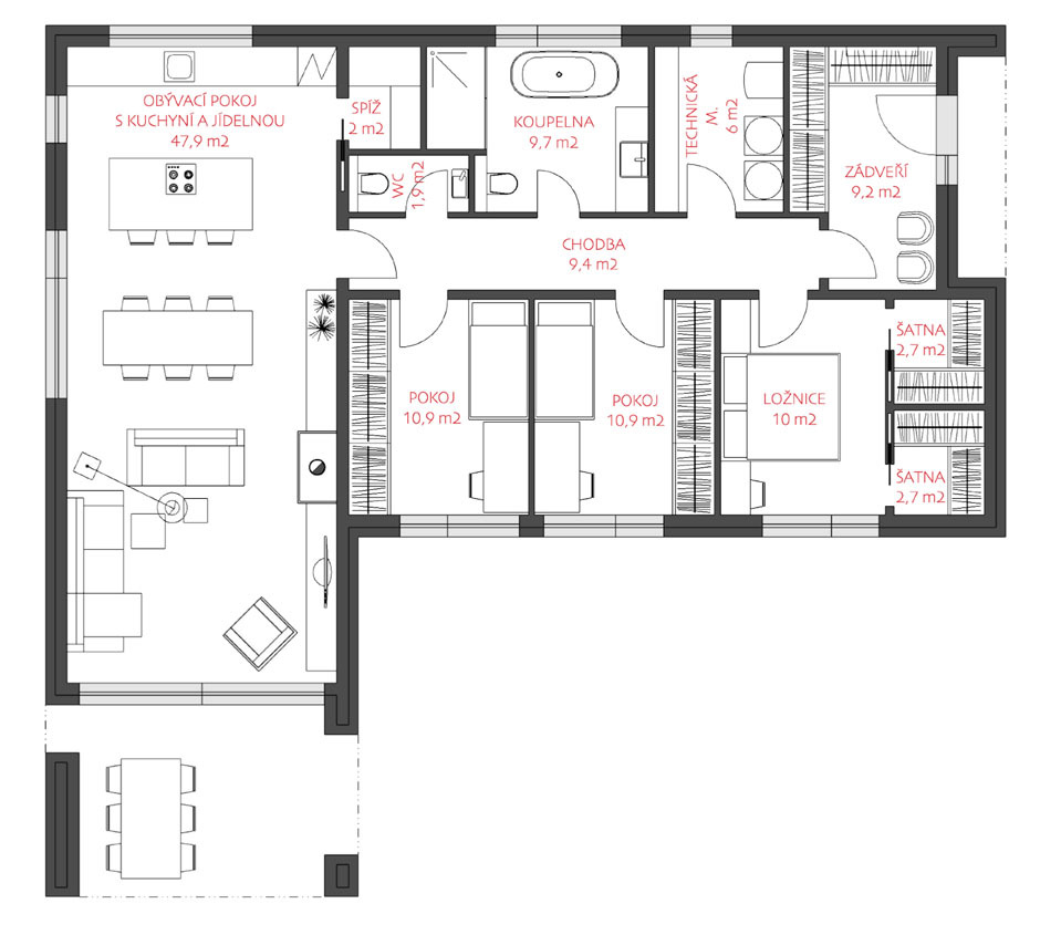
Funkčná dispozícia – základ pohodlného bývania
Svojou veľkosťou aj usporiadaním by mala zodpovedať vašim potrebám a veľkosti a charakteru parcely, na ktorej stojí. Základné zásady platia tak pre katalógový, ako aj individuálne navrhnutý dom. Správna dispozícia vychádza z toho, ako je orientovaný pozemok na svetové strany, aký je sklon terénu, odkiaľ vedie prístup a príchod. Všeobecne by obytné miestnosti, predovšetkým spoločný obývací priestor, mali byť orientované na oslnenú stranu, najlepšie na juh, juhovýchod, juhozápad, a zároveň aj tam, kde je najkrajší výhľad a najväčšie súkromie. Vstup a priestory zázemia majú svoje miesto v menej atraktívnej časti domu, kde neuberajú slnko alebo pekný výhľad. Pohodlnú prevádzku domácnosti uľahčí rozdelenie na funkčné zóny podľa každodenného života v dome. Jednotlivé zóny aj miestnosti by mali mať primeranú veľkosť, logicky a priamo na seba nadväzovať a vzájomne sa nerušiť. Hlavné funkčné zóny predstavujú vstupnú časť, spoločný obývací priestor s jedálňou a kuchyňou a spálňovú časť. Podľa možností a veľkosti domu zvážte oddelené spálne rodičov a detí, čím bude zaistené maximálne súkromie. Nadštandardné domy zahŕňajú napríklad bazén, domáce fitness, apartmán pre hostí, spoločenskú miestnosť a pod. Každá zóna si zaslúži vlastné zázemie a zodpovedajúci úložný priestor. Napríklad na vstup by mala nadväzovať šatňa, na spálňu kúpeľňa s WC, prípadne aj šatňa, správne miesto pre jedálenský stôl a špajzu sa nachádza priamo vedľa kuchyne a toalety by mali byť vždy dobre dostupné. Vyvarujte sa dlhých či „kľukatých“ komunikačných línií a všetkých prvkov, ktoré môžu na vizualizáciách pôsobiť atraktívne, ale v každodennom živote vám budú prekážať. Ku schodisku na poschodie nie je ideálne „putovať“ cez celú obývaciu izbu, cesta zo spálne či od bazéna na toaletu by nemala viesť celým domom. Oplatí sa detailne si prejsť celú dispozíciu a zamyslieť sa nad tým, ako tu bude prebiehať každodenná prevádzka od rána do večera. Čím bude usporiadanie jednoduchšie a logickejšie, tým lepšie sa vám bude bývať.
Technológia a architektúra
S rozvojom a dnes aj povinnosťou výstavby v energeticky pasívnom štandarde zastávajú a budú zastávať technológie v architektúre čím ďalej väčší význam. Pasívny koncept sa odráža už v samotnom architektonickom riešení, ktoré počíta s kvalitne zateplenou obálkou, s energetickým prínosom presklených plôch (ale aj ich zatienením), s jednoduchým tvarom a minimalizáciou prvkov, ktoré môžu zvyšovať tepelné straty. Spôsob vykurovania a ohrevu teplej vody a využitie obnoviteľnej energie, či už to bude tepelné čerpadlo, fotovoltika či iné zdroje, kladie špecifické nároky na dispozíciu (umiestnenie a veľkosť technickej miestnosti, komína, ventilačného systému, batérií a ďalších zariadení). Tieto technologické aspekty si treba s architektom ujasniť pokiaľ možno už v rámci štúdie domu. Už v tejto fáze sa stavebník rozhoduje aj o konštrukčnom systéme, ktorý má vplyv na vlastnosti stavby, jej cenu a dĺžku výstavby. Zásadná dilema býva medzi murovaným domom a drevostavbou. Táto problematika si zasluhuje samostatnú tému, všeobecne však možno odporučiť moderné stavebnicové systémy. Či už sú založené na báze keramiky, betónu či dreva, umožňujú dosiahnuť vysokú presnosť a technickú kvalitu stavby a zaručujú požadované statické a tepelnoizolačné vlastnosti. Ponúkajú preverené riešenia, ktoré zjednodušujú a urýchľujú výstavbu, znižujú na minimum riziko chýb a vedú k celkovo nižším nákladom. Vďaka veľkej variabilite a komplexnosti rad stavebníc umožňuje realizovať aj atypické riešenia.



